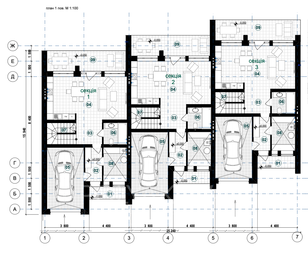
Project for a townhouse in the village Kozin Reviews We appreciate your feedback send Your name Your e-mail (It will be hidden) Your phone (It will be hidden) Foto Address Theme review Your review